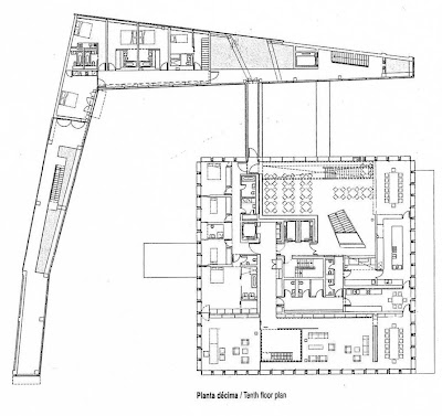
A orillas del río Spree, en Berlín, la capital alemana, se ubica un predio que parece flotar y que busca reflejos para semejarse lo más posible a las aguas y canales de un paisaje típico de los Países Bajos. En ese espacio se levanta, precisamente, la embajada de Holanda, obra de uno de los más controvertidos arquitectos del momento, Rem Koolhas, quien con su estudio OMA (Office for Metropolitan Architecture, una firma profesional de arquitectura contemporánea, urbanismo y análisis cultural, donde trabajan 18 arquitectos y diseñadores de origen multinacional) ganó en 1997 el concurso para levantar esta edificación y que le ha sacado canas a más de una constructora por su complejidad. Se trata de un edificio con un cubo traslúcido y una placa de viviendas que lo rodea en dos de sus lados. La oficina del embajador, de la que cuelga una caja de cristal, la skybox, da al río Spree, lo mismo que el gimnasio para los diplomáticos. El cubo está “penetrado” por una especie de “serpentina”, Das Trajekt, que transita por los ocho pisos, de arriba a abajo. Esta espiral define la comunicación interna de la caja, la cual combina tramos escalonados con rampas. La trayectoria en espiral funciona como un conducto principal de ventilación, que arroja aire fresco a las oficinas. El paseo llega a todas la secciones de la embajada y permite disfrutar el paisaje de la ciudad. Desde la entrada, el recorrido transcurre por la biblioteca, las salas de reunión, el auditorio, el gimnasio y el restaurante, hasta llegar a la terraza. En una de las vueltas, al final de su circulación interna: una ventana abierta sirve de marco a la torre Fernsehsturm, en Alexanderplatz, una señal de identidad de Berlín. Los críticos dicen que la embajada es como una «ciudad dentro de una ciudad», que se contrapone a sus principios urbanísticos. Sin embargo, el holandés ya recibió el año pasado el Premio de Arquitectura de Berlín. La planta, en forma de L, está separada unos 10 metros de la estructura cúbica y se une a ésta por cuatro puentes aéreos. En total se distribuyen de la mejor manera posible 8 500 m2 (4 800 de oficinas, 1 500 de vivienda y 2 200 de estacionamiento).
Rem Koolhas ha sido llamado el profeta de la Nueva Arquitectura, pero también el Amante del Caos y la Desmesura. Es un arquitecto clave para entender la arquitectura que está transformando a las sociedades en todo el orbe. Su embajada de Holanda, en Berlín, es un catálogo del porvenir.
“Por primera vez en muchas décadas los arquitectos han sido buscados por su poder para articular físicamente nuevas visiones”. Rem Koolhas
































No hay comentarios:
Publicar un comentario