La Casa Ponce es un encargo para vivienda unifamiliar en un barrio de los años ’40 en el conurbano de Buenos Aires. El terreno es extremadamente largo y angosto (16 x 120 metros), con importante vegetación en sus bordes, una fuerte pendiente y vista sobre el Río de La Plata en uno de sus extremos, lo que le da un aspecto de quebrada. La idea fue mantener libre la vista desde el acceso hasta el río, de modo que la casa no se transforme en un tapón que divida el terreno en un adelante y un atrás.
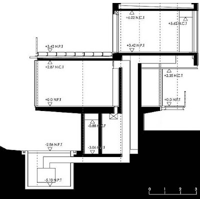
El programa se desarrolla en dos volúmenes flotantes y un zócalo semienterrado. En la planta principal, a nivel de la calle pero elevada respecto del terreno en esa parte, se ubican los espacios públicos, cocina, terrazas y piscina, formando un volumen completamente vidriado que se relaciona visualmente con el terreno en todas sus direcciones. En la planta superior se ubican las habitaciones en un volumen más cerrado que el anterior, cuya azotea sirve como terraza. En el zócalo se encuentran la lavandería, sala de máquinas, bodega y cuarto de servicio.
El programa se desarrolla en dos volúmenes flotantes y un zócalo semienterrado. En la planta principal, a nivel de la calle pero elevada respecto del terreno en esa parte, se ubican los espacios públicos, cocina, terrazas y piscina, formando un volumen completamente vidriado que se relaciona visualmente con el terreno en todas sus direcciones. En la planta superior se ubican las habitaciones en un volumen más cerrado que el anterior, cuya azotea sirve como terraza. En el zócalo se encuentran la lavandería, sala de máquinas, bodega y cuarto de servicio.
La casa plantea un juego volumétrico y estructural, de modo que la barra masiva que contiene las habitaciones descansa sobre un volumen de vidrio, que a su vez flota sobre una base rehundida de los bordes que contienen los servicios. La casa Ponce plantea una serie de nuevos puntos de vista sobre el Rio de La Plata, en un terreno estrecho y con poco asoleamiento.
Autor: Mathias Klotz
Colaboradores: Pablo RiquelmeIng
Calculista: Enzo Valladares (Chile), Stieglitz (Argentina)
Año de construcción: 2001- 2003
Superficie de terreno: 2000 m²
Superficie construida: 570 m²
Ubicación: San Isidro,Buenos Aires, Argentina















No hay comentarios:
Publicar un comentario